Nieuw in verkoop:Garen 20, 3421 KL Oudewater - Foto
Nieuw in verkoop
+17

Garen 20 3421 KL Oudewater € 470.000,- k.k.

  • Appartement
  • 3 kamers
  • 2 slaapkamers
  • 1 badkamers
  • Bouwjaar 2011
  • 79 m² gebruiksoppervlakte

Beschrijving

Uitstekend gelegen 3-kamerappartement, geschikt voor jong en oud, met groot balkon van ca. 14 m² en fraai uitzicht op de tuin van de VVE.

Gebouwd in 2011 van hoogwaardige en duurzame materialen met onder andere afwerkingen met leisteen. Volledig isolatie van vloer, muur en dak en HR++ glas.
Gesitueerd op de begane grond in een complex van 23 appartementen, fraai aangelegde gemeenschappelijke tuin en voldoende parkeergelegenheid in de directe omgeving. Gezamenlijke (afgesloten) fietsenbergingen in- en uitpandig.

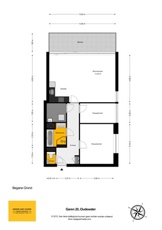
Indeling
Royale entree/hal, toilet (2024), ruime ouderslaapkamer, luxe, spiksplinternieuwe badkamer (2024) met ligbad, inloopdouche , dubbele wastafel in meubel en vloerverwarming, kleine slaap/werkkamer, ruime berging met cv-combiketel (2011), M.V.-box en aansluitpunten voor wasmachine/droger, riante, lichte living, moderne open keuken met keramische kookplaat, afzuigkap, combimagnetronoven, koelkast en vaatwasser , entree naar ruim balkon over de gehele breedte (ca. 14 m²).

Gelegen nabij (sport)voorzieningen en het historische centrum.

Gezonde vereniging van eigenaren, servicekosten € 125,00 per maand.

Vraagprijs € 470.000,-- k.k.

Let op, de woning wordt aangeboden met de onderstaande voorrangscategorieën;
Categorie 1* : Huurders van De Woningraat
Categorie 2** : Inwoners van de gemeente Oudewater
Categorie 3** : Een ieder

* Huurders van De Woningraat hebben als eerste de mogelijkheid om de woning te kopen, waarbij uitgangspunt is dat zij de huurwoning achter laten. Huurders ontvangen 10% korting op de taxatiewaarde/koopsom met een zelfbewoningsplicht van 5 jaar met hieraan gekoppeld een anti-speculatiebeding. Indien binnen categorie 1 meerdere inschrijvingen worden ontvangen, zal er worden geloot door de notaris.

** Kandidaat kopers in categorie 2 en 3 ontvangen geen 10% korting. Voor deze categorieën is wel de zelfbewoningsplicht van toepassing. Het anti-speculatiebeding is niet van toepassing voor categorie 2 en 3. Bij meerdere inschrijvingen in de categorieën 2 en 3 wordt marktwerking toegepast.

Verkoopprocedure:
Wilt u in aanmerking komen voor deze woning, dan dient u zich uiterlijk 4 januari 2026 in te schrijven via de website van De Woningraat te Oudewater www.dewoningraat.nl. De volgorde van toewijzing staat op het inschrijfformulier.

Kaart

Kenmerken

Overdracht

Referentienummer
00281
Vraagprijs
€ 470.000,- k.k.
Servicekosten
€ 125,-
Inrichting
Niet gestoffeerd
Inrichting
Niet gemeubileerd
Status
Nieuw in verkoop
Aanvaarding
In overleg
Aangeboden sinds
Donderdag 18 december 2025

Bouw

Type object
Appartement, portiekflat
Woonlaag
1e woonlaag
Soort bouw
Bestaande bouw
Bouwperiode
2011
Dakbedekking
Leisteen
Type dak
Zadeldak
Isolatievormen
HR-glas
Volledig geïsoleerd

Oppervlaktes en inhoud

Woonoppervlakte
79 m²
Inhoud
255 m³
Oppervlakte gebouwgebonden buitenruimte
14 m²
Balkonoppervlakte
14 m²

Indeling

Aantal bouwlagen
1
Aantal kamers
3 (waarvan 2 slaapkamers)
Aantal badkamers
1 (en 1 apart toilet)

Locatie

Ligging
In woonwijk
Vrij uitzicht

CV ketel

Warmtebron
Gas
Bouwjaar
2011
Combiketel
Ja
Eigendom
Eigendom

Uitrusting

Warm water
CV-ketel
Verwarmingssysteem
Centrale verwarming
Vloerverwarming (gedeeltelijk)
Ventilatie methode
Mechanische ventilatie
Badkamervoorzieningen
Inloopdouche
Ligbad
Vloerverwarming
Wastafelmeubel
Heeft een balkon
Ja
Heeft een lift
Ja
Heeft schuur/berging
Ja
Heeft een schuifpui
Ja
Heeft ventilatie
Ja

Vereniging van Eigenaren

Ingeschreven bij de KvK
Ja
Jaarlijkse vergadering
Ja
Periodieke bijdrage
Ja
Reservefonds
Ja
Meer jaren onderhoudsplan
Ja
Onderhoudsverwachting
Ja
Opstal verzekering
Ja

Kadastrale gegevens

Kadastrale aanduiding
Snelrewaard C 931
Perceeloppervlakte
2.630 m²
Omvang
Appartementsrecht of complex
Eigendomsituatie
Eigen grond

Brochure(s) en overige bijlagen

Garen 20, 3421 KL OUDEWATER (1) Download