Nieuw in verkoop:Oosteinde 3H25, 2841 AA Moordrecht - Foto
Nieuw in verkoop
+33

Oosteinde 3H25 2841 AA Moordrecht € 245.000,- k.k.

  • Woonhuis
  • 4 kamers
  • 3 slaapkamers
  • 1 badkamers
  • Bouwjaar 2001
  • 247 m² perceeloppervlakte
  • 109 m² gebruiksoppervlakte
  • B Energielabel B

Beschrijving

Vrijstaande, rietgedekte recreatiewoning met karakter op een unieke plek!

Op Recreatiepark ’t Vissertje, grenzend aan het fraaie Rijn- en Gouwegebied, vind je deze vrijstaande, rietgedekte recreatiewoning. Een plek die rust ademt, maar tegelijk dichtbij de gezelligheid van Moordrecht én Gouda ligt – met alle denkbare voorzieningen binnen handbereik en snelle ontsluiting naar A12 en A20.

Met een perceel van 247 m² heb je de ruimte, vrijheid en privacy om écht tot jezelf te komen. Het park is autovrij, dus kun je heerlijk genieten van rust en vrijheid.

Riante woonkamer met sfeer, op de koude dagen genieten van warmtestralen van de houtkachel en zorgt de airconditioning voor verkoeling tijdens zomerse dagen.
Een open keuken met veel kastruimte en inbouwapparatuur met o.a.: koelkast, 5-pits gaskookplaat, afzuigkap, combimagnetronoven én een vaatwasser.
Ook vind je op de begane grond het toilet en een badkamer uitgerust met een comfortabele douchecabine, wastafel en aansluitingen voor een wasmachine en droger.

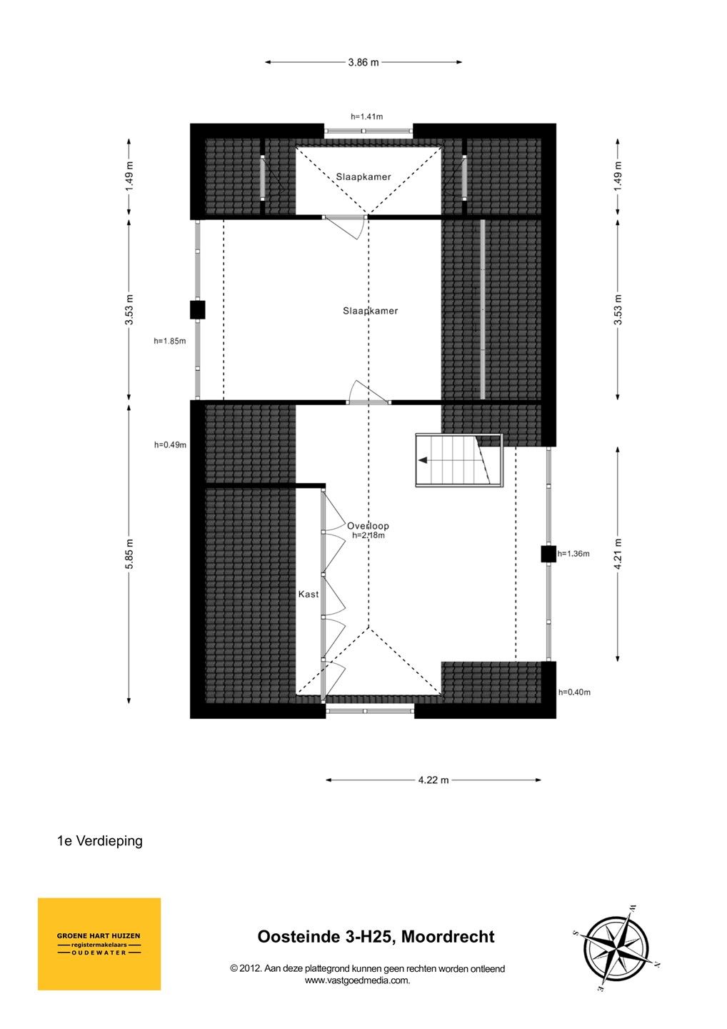
Op de open verdieping vind je twee riante slaapgedeeltes met veel bergruimte en een kleine slaapkamer, welke is voorzien van airconditioning.

Verdere bijzonderheden:
- Actieve vereniging
- 365 dagen recreëren toegestaan
- eigen gas-, water- en elektrameters
- servicekosten € 238,-- per maand
- energielabel B
- volledig dubbele beglazing
- 7 zonnepanelen

Recreatieverblijven:
Recreatieverblijven in de gemeente Zuidplas mogen uitsluitend voor recreatieve doeleinden gebruikt worden. Permanente bewoning van recreatieverblijven in de gemeente Zuidplas is niet toegestaan.

Financieringsmogelijkheden:
Bij de aankoop van een recreatiewoning gelden er andere financieringsvoorwaarden dan bij een reguliere woning. Niet alle banken verstrekken standaard een hypotheek voor een recreatiewoning. Enkele geldverstrekkers bieden speciale recreatiewoninghypotheken aan, vaak met een eigen inbreng en onder specifieke voorwaarden. Het is daarom verstandig om je vooraf goed te laten adviseren door een financieel adviseur, zodat je precies weet wat er voor jouw situatie mogelijk is.

Kaart

Kenmerken

Overdracht

Referentienummer
00283
Vraagprijs
€ 245.000,- k.k.
Servicekosten
€ 238,-
Inrichting
Niet gestoffeerd
Inrichting
Niet gemeubileerd
Status
Nieuw in verkoop
Aanvaarding
In overleg
Aangeboden sinds
Woensdag 4 maart 2026

Bouw

Type object
Woonhuis, eengezinswoning, vrijstaande woning
Soort bouw
Bestaande bouw
Bouwperiode
2001
Dakbedekking
Riet
Type dak
Zadeldak
Isolatievormen
Dakisolatie
Dubbel glas
Muurisolatie
Vloerisolatie

Oppervlaktes en inhoud

Perceeloppervlakte
247 m²
Woonoppervlakte
109 m²
Inhoud
368 m³
Oppervlakte externe bergruimte
7 m²

Indeling

Aantal bouwlagen
2
Aantal kamers
4 (waarvan 3 slaapkamers)
Aantal badkamers
1 (en 1 apart toilet)

Locatie

Ligging
Aan rustige weg
Aan water
Vrij uitzicht

Tuin

Type
Achtertuin
Oriëntering
Noord-oost
Staat
Normaal
Tuin 2 - Type
Zijtuin
Tuin 2 - Hoofdtuin
Ja
Tuin 2 - Oriëntering
Zuidoost
Tuin 2 - Staat
Normaal
Tuin 3 - Type
Achtertuin
Tuin 3 - Oriëntering
Zuid-west

Energieverbruik

Energielabel
B

CV ketel

Warmtebron
Gas
Bouwjaar
2011
Combiketel
Ja
Eigendom
Eigendom

Uitrusting

Warm water
CV-ketel
Verwarmingssysteem
Airconditioning
Centrale verwarming
Houtkachel
Ventilatie methode
Mechanische ventilatie
Natuurlijke ventilatie
Badkamervoorzieningen
Douche
Wasmachineaansluiting
Wastafel
Heeft airco
Ja
Tuin aanwezig
Ja
Heeft schuur/berging
Ja
Heeft zonnepanelen
Ja
Heeft ventilatie
Ja

Kadastrale gegevens

Kadastrale aanduiding
Moordrecht B 2229
Perceeloppervlakte
247 m²
Omvang
Geheel perceel
Eigendomsituatie
Eigen grond